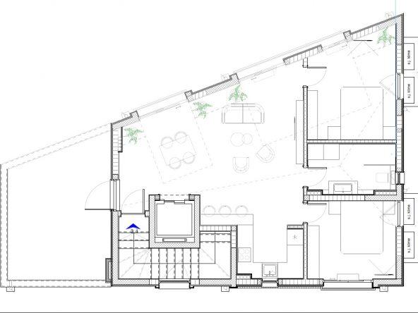
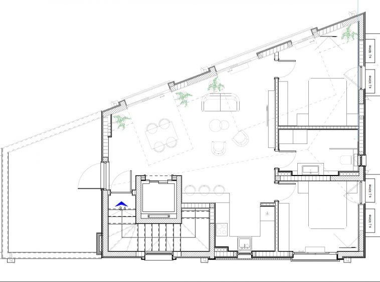
Эти апартаменты c просторной площадью 62,25 м² и террасой 19,64 м². Ориентация квартиры: восток, юг, запад, внутри и на террасе много солнечного света.
Эта немеблированная квартира доступна за 250 000 евро и включает в себя два парковочных места.
Здание будет готово к заселению весной 2024 года. В квартире будет прямой индивидуальный вход с лифтом, ванная комната с теплыми полами. Посмотреть 3D дизайн и план квартиры можно здесь, а также можно увидеть текущее состояние квартиры.
Вот пять преимуществ этого расположения:
Compare listings
сравнить